北区十条3階建てモデルハウス【2025年9月グランドオープン】
狭小地で叶える都市型高性能3階建て
北区十条3階建てモデルハウス【2025年9月グランドオープン】
都市部の限られた敷地に、ゆとりある空間を実現。東京23区を中心に60年・1,500邸の新築一戸建て実績とノウハウを随所に散りばめています。
万が一の大きな地震にも備える最高等級の耐震等級3はもちろん、夏は涼しく冬は暖かい室内環境を一年中保つ断熱等級6や高気密仕様など、国が推奨する高い住宅性能をクリア。この優れた性能を、都心部のコンパクトな土地を最大限に活かす3階建てのモデルハウスでご提案します。
※スタッフは常駐しておりません。事前予約のうえご来場をお願いいたします。
- 広々LDK
- 開放感あるリビング
- バルコニー
- ウォークインクローゼット
- シューズクローク
- 勾配天井
- 造作家具
- 耐震等級3対応
| 住所 | 東京都北区上十条2-16 -6 (MAP) |
|---|---|
| 時間 | 10:00~17:00にご覧いただけます。 |
| 定休 | 火曜・水曜を除きご覧いただけます。(スタッフは常駐しておりません。事前予約のうえご来場をお願いいたします) |
フォトギャラリー
PHOTO GALLERY
北区十条3階建てモデルハウス【2025年9月グランドオープン】の
見どころ・ポイント
POINT
-
外観
-
2階 LDK
限られた敷地でも広々とした16.5帖のLDKを確保。天井を折り上げた形にして間接照明を施すことで、より明るく広がりを感じさせる空間を演出しています。また、パントリーと外からの視線を遮るサービスバルコニーを設置することで、使い勝手とプライバシーの両方を向上させ、家事動線と収納性の効率化も実現しました。
-
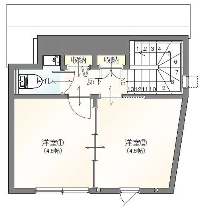
3階 フレキシブルな子ども空間
将来の変化に対応できるフレキシブルな子ども空間をデザインしました。天井が低くなっている部分や斜めの壁といった特徴を活かした個性的な設計により、空間を有効活用しています。現在は子ども部屋として利用できますが、将来のライフスタイルの変化に合わせて、フリースペースとして自由に活用できるような設計が施されています。
-
1階 動線を重視した快適設計
中央にコンパクトなホールを配置し、どの部屋からも便利に使える化粧台を設けた設計です。家族みんなの利便性を考えた動線を実現しました。また、エントランスには引き戸とスロープを設けてバリアフリーを実現し、さらに街道側からの視線を遮るガレージによって開放感と安心感を両立しています。
アクセス
ACCESS
-
-
住所 東京都北区上十条2-16 -6 (MAP) 時間 10:00~17:00にご覧いただけます。 定休 火曜・水曜を除きご覧いただけます。(スタッフは常駐しておりません。事前予約のうえご来場をお願いいたします)


