MENUCLOSE
0120-952-900
受付:9時-18時(火曜・水曜定休)
リフォームをお考えの方
新卒採用
中途採用
PLAN
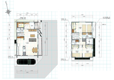
敷地29坪の間取り4LDKの3階建て
詳しく見る
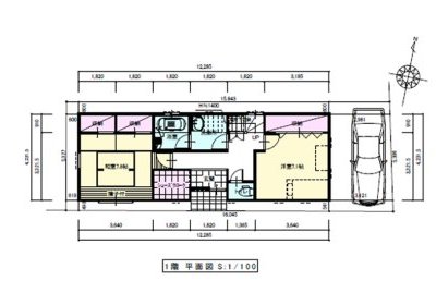
敷地26坪の間取り3LDKの2階建て
敷地26坪、間取り3LDKの2階建て
モデルハウス来場予約
デジタルカタログ
カタログ請求
イベント情報
(見学会・キャンペーン)
TOPページ
家づくりを知る
狭小住宅について
3階建て住宅について
二世帯住宅について
建て替えについて
家づくりの流れ
家づくりコラム
よくある質問
リバティホームの家
リバティホームの特長
アフターサービス
モデルハウス・ショールーム
施工事例
フォトギャラリー
間取り事例
お客様の声
商品ラインナップ
リバティホームの人
スタッフ紹介
社長ブログ
プロデューサーブログ
スタッフブログ
会社情報
会社概要・アクセス
沿革・受賞歴
お問い合わせ
ご来場予約
イベント・見学会・キャンペーン
デジタルカタログダウンロード
閉じる