間取り事例

PLAN

3階建て 19坪(62.7㎡)

敷地19坪、間取り3LDKの3階建て

敷地19坪、間取り3LDKの3階建て
敷地面積 19.16 坪 (63.34 m2)延床面積 31.37 坪 (103.71 m2)

①ウォークインクローゼット
なんといっても目立つのは、奥の主寝室への通り道がウオークインクローゼットということ。
普通の廊下・箪笥という選択肢もありましたが、空間を最大限に利用しました。

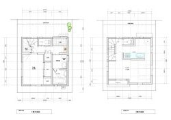
②15.5帖のリビング
2階はオープンキッチンに吹き抜けの15.5帖のリビング。
1階から3階への移動でリビングを通るので、家族のコミュニケーションが薄くなることはありません。

③PCカウンター
3階のPCカウンターの場所に注目。
リビングに設置するケースが多いですが、やはりプライベートも必要とのことで、階段前にしました。
収納設備も充実しています。