間取り事例
PLAN
32.73 坪 (108.20 m2)
敷地33坪の間取り5LDK以上の3階建て
| 敷地面積 | 32.73 坪 (108.20 m2) | 延床面積 | 49.93 坪 (165.05 m2) |
|---|


個室が6部屋の6LDK。1階の親世帯に個室が2部屋あり、急な来客にも対応可能です。3階のウオークインクローゼットは驚きの4.5帖。それでも同フロアの個室は6帖・6帖・5帖としっかり確保しています
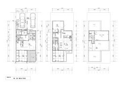
間取り事例
PLAN
32.73 坪 (108.20 m2)
| 敷地面積 | 32.73 坪 (108.20 m2) | 延床面積 | 49.93 坪 (165.05 m2) |
|---|


個室が6部屋の6LDK。1階の親世帯に個室が2部屋あり、急な来客にも対応可能です。3階のウオークインクローゼットは驚きの4.5帖。それでも同フロアの個室は6帖・6帖・5帖としっかり確保しています