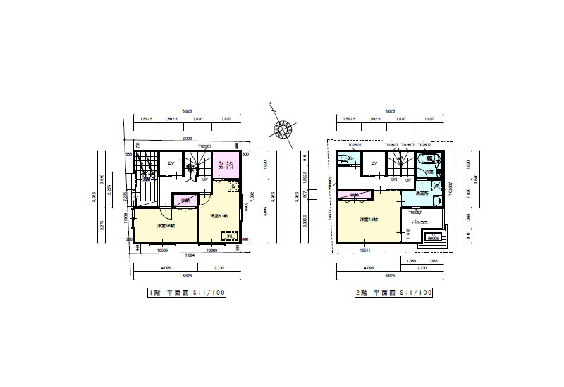
間取り事例
PLAN
3階建て 58.54 坪 (193.52 m2)
敷地59坪の間取り3LDKの3階建て
| 敷地面積 | 58.54 坪 (193.52 m2) | 延床面積 | 32.77 坪 (108.32 m2) |
|---|


LDKは三階に。広い玄関は一日のスタートを気分よくさせます
間取り事例
PLAN
3階建て 58.54 坪 (193.52 m2)
| 敷地面積 | 58.54 坪 (193.52 m2) | 延床面積 | 32.77 坪 (108.32 m2) |
|---|


LDKは三階に。広い玄関は一日のスタートを気分よくさせます