間取り事例
PLAN
3階建て 20.63 坪 (68.20 m2)
敷地21坪の間取り4LDKの狭小住宅
| 敷地面積 | 20.63 坪 (68.20 m2) |
|---|

【夫婦・子2人にそれぞれ個室の4LDK】
①十分なスペースの個室
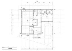
1階は両親がそれぞれ十分なスペースの個室。
シューズクロークとウオークインクローゼットも準備しています。
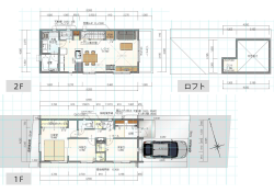
②2階リビング
家族が集う2階リビング。
オープンキッチンで広い空間を確保すると同時に、奥には畳部屋も。
ソファーでくつろいだり、畳でゴロゴロしたりと、リラックスして過ごすことができます。
フロアの中心には階段があります。
③3階
3階は2つの子供部屋と十分な収納スペースです。
中央は吹き抜けがあり、広めの廊下も明るく通ることができます。