間取り事例
PLAN
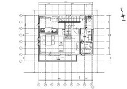
4LDKの3階建て 23.66 坪 (78.21 m2)
敷地24坪の間取り4LDKの3階建て
| 敷地面積 | 23.66 坪 (78.21 m2) | 延床面積 | 37.47 坪 (123.88 m2) |
|---|


ウオークインクローゼットが三か所もあり、屋上は12.5帖。
もちろん対面キッチンでリビングは19帖。畳スペースも抑えています。
一階は駐車場もあり、トイレも安心の二ヶ所です。
何が足りないのか?を探す方が難しい家。
間取り事例
PLAN
4LDKの3階建て 23.66 坪 (78.21 m2)
| 敷地面積 | 23.66 坪 (78.21 m2) | 延床面積 | 37.47 坪 (123.88 m2) |
|---|


ウオークインクローゼットが三か所もあり、屋上は12.5帖。
もちろん対面キッチンでリビングは19帖。畳スペースも抑えています。
一階は駐車場もあり、トイレも安心の二ヶ所です。
何が足りないのか?を探す方が難しい家。