間取り事例
PLAN
2階建て 14坪(42㎡)
敷地14坪、間取り2LDKの2階建て
| 敷地面積 | 14.31 坪 (47.31 m2) | 延床面積 | 17.03 坪 (56.30 m2) |
|---|
延床56㎡、17坪の非常にコンパクトなお宅
2人でクラスには十分な2LDKです。
2階の洋室は用途によって個室にも広いリビングにも稼働できます。
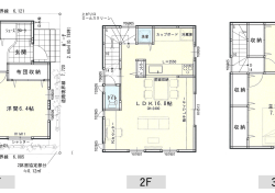
間取り事例
PLAN
2階建て 14坪(42㎡)
| 敷地面積 | 14.31 坪 (47.31 m2) | 延床面積 | 17.03 坪 (56.30 m2) |
|---|
延床56㎡、17坪の非常にコンパクトなお宅
2人でクラスには十分な2LDKです。
2階の洋室は用途によって個室にも広いリビングにも稼働できます。