間取り事例
PLAN
-
敷地13坪の間取り3LDKの狭小住宅
- 木造軸組み 13坪(42.9㎡)
詳しく見る
-
敷地14坪の間取り2LDK以下の狭小住宅
- 間取り2LDK以下 14.31 坪 (47.31 m2)
詳しく見る
-
敷地13坪の間取り2LDK以下の狭小住宅
- 2LDK以下の狭小住宅 13.21 坪 (43.67 m2)
詳しく見る
-
敷地10坪の間取り3LDKの狭小住宅
- 3階建て 9.51 坪 (31.44 m2)
詳しく見る
-
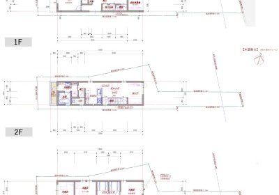
敷地11坪、間取り4LDKの3階建て
- 3階建て 11坪(36.3㎡)
詳しく見る
-
敷地13坪、間取り3LDKの3階建て
- 3階建て 13坪(42.9㎡)
詳しく見る
-
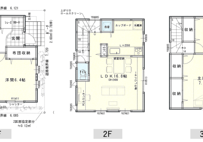
敷地14坪、間取り3LDKの3階建て
- 14.27坪(47.1㎡)
詳しく見る
-
敷地14坪、間取り2LDKの2階建て
- 2階建て 14坪(42㎡)
詳しく見る